
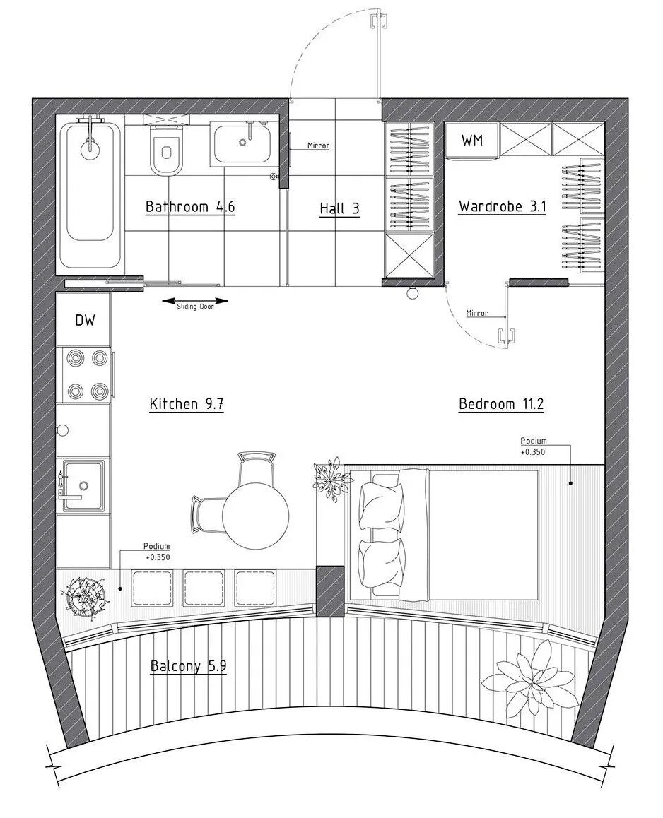
这个公寓位于俄罗斯的首都莫斯科
面积为 29.6㎡
由 Barinov Andrey 设计
虽然面积不大,但麻雀虽小五脏俱全
卧室、厨房、卫生间,一个也不少

因为受面积和户型的限制
在设计上不仅不能浪费每一寸空间
还要让室内的布局合理
以及预留出恰当好处的收纳空间

公寓内并没有明确的界限划分
以白、灰色调为主,简约、显大
部分家具选用苹果绿做点缀
给人十分舒适的氛围感

考虑了面积的关系
设计师将餐厅和客厅合并在一起
布置在了靠窗位置
大面积的玻璃窗带来了足够的采光
也缓解了小空间的压抑

加宽的窗台铺上软垫变成小沙发
茶几则用圆形餐桌代替
搭配上同款式的餐椅
不论是作为客厅还是餐厅
都给人一种自然、舒适的赶脚















△平面图